Background

Properti / Detail Properti

Spesifikasi Unit


2 Kamar Tidur
1 Kamar Mandi
Luas Bangunan:
60 m²
Luas Tanah:
72 m²
Tipe Properti:
Rumah
Garasi:
1 Mobil

Material Bangunan

Pondasi: Batu Kali
Lantai: Granit
Dinding: Double Heble Plester,
Aci dan di Cat
Rangka Atap: Baja Ringan
Penutup Atap: Genteng Flat
Kusen: Alumunium
Pintu: Panel
Plafon: GRC
Sanitari: Closet duduk & Shower
Listrik: 1300 Wat

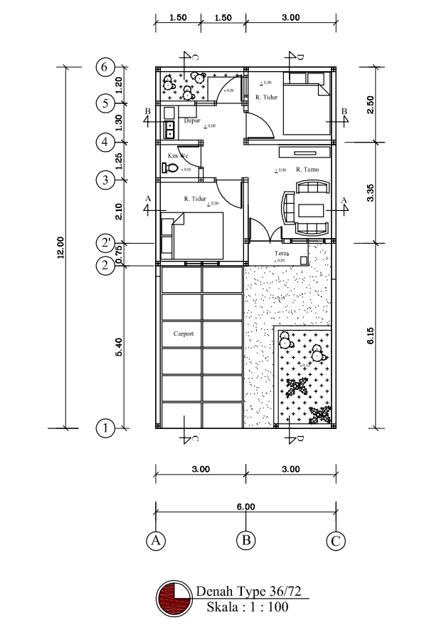
Denah

Denah

Side Plan

Side Plan

Pengembang

PT. Sinar Dinamika Karya

Pemasaran

Kp. Telar Rt. 002/001 Desa Muktiwari Kec. Cibitung - Bekasi

Telepon 1
+62 813.1083.4962 (Marketing)

WhatsApp 1
+62 813.1083.4962 (Marketing)

Email
andarahillsofficial@gmail.com

Bagaimana Kami Dapat Membantu Anda!

Kami hadir untuk memudahkan Anda memiliki rumah impian. Dapatkan layanan terbaik mulai dari konsultasi, pemilihan unit, hingga proses pembelian yang mudah dan transparan.